Kích thước các ngăn tủ bếp tiêu chuẩn, chi tiết nhất

Kích thước các ngăn tủ bếp đóng vai trò quan trọng trong việc tạo không gian lưu trữ hiệu quả và tiện lợi. Từ việc đựng chén đĩa cho đến các dụng cụ nấu nướng, sự phù hợp về kích thước sẽ giúp tối ưu hóa sự sắp xếp và tăng cường tiện ích trong căn bếp. Chọn đúng kích thước tủ bếp sẽ mang lại không gian thực sự thông minh và hoàn hảo cho mọi gia đình.

Lợi ích khi chọn kích thước các ngăn tủ bếp chuẩn

Chọn kích thước các ngăn tủ bếp chuẩn mang lại nhiều lợi ích đáng kể. Trước tiên, nó tạo ra sự cân đối và hài hòa trong thiết kế bếp, tạo nên sự thẩm mỹ và tinh tế. Đồng thời, kích thước chuẩn cũng giúp tận dụng không gian tối đa, tạo ra sự tiện lợi và linh hoạt trong việc lưu trữ và sắp xếp các vật dụng.

Một lợi ích quan trọng khác là tính thống nhất và dễ dàng trong việc thay thế, bổ sung các ngăn tủ. Khi kích thước chuẩn được sử dụng, việc thay thế hoặc nâng cấp các ngăn tủ trở nên đơn giản hơn, không gây phiền toái hay phải làm thay đổi cấu trúc căn bếp.

Tóm lại, chọn kích thước các ngăn tủ bếp chuẩn mang lại lợi ích về thẩm mỹ, tiện lợi, linh hoạt và tăng giá trị cho căn bếp. Đây là một yếu tố quan trọng trong việc tạo nên một không gian bếp hoàn hảo và đáng yêu cho mọi gia đình.

cách tính kích thước các ngăn tủ bếp
Kích thước các ngăn tủ bếp chuẩn

Kích thước các ngăn tủ bếp từng khu vực cụ thể là bao nhiêu?

Kích thước các ngăn tủ bếp khu nấu ăn

Kích thước các ngăn tủ bếp khu nấu ăn cần được xác định một cách cẩn thận để đáp ứng nhu cầu lưu trữ và sử dụng đồ dùng nấu ăn. Việc có các ngăn tủ đủ rộng và sâu sẽ giúp tối ưu hóa không gian và tiện lợi trong việc lưu trữ chảo, nồi, xoong và các dụng cụ nấu nướng khác.

Ngoài ra, các ngăn tủ nên có đủ kích thước để chứa các nguyên liệu, gia vị và các vật dụng cần thiết khác cho quá trình nấu ăn.

tính kích thước các ngăn tủ bếp
Kích thước các ngăn tủ bếp khu nấu ăn

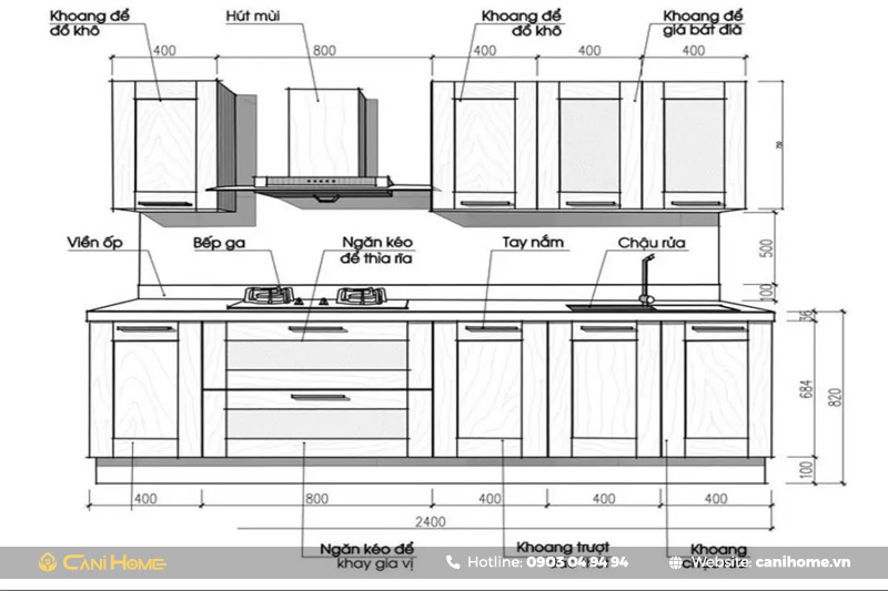
Kích thước của các ngăn tủ bếp trong khu vực nấu ăn nên được thiết kế rộng bằng với chiều rộng của bếp, có thể dao động từ 60cm đến 85cm. Chiều cao lý tưởng thường nằm trong khoảng từ 80cm đến 82cm, phù hợp với chiều cao của người Việt. Chiều sâu phù hợp thường nên từ 30cm đến 55cm.

>> Bài viết cùng chủ đề: Tìm hiểu kích thước tủ bếp gỗ tự nhiên theo chiều cao của người Việt

Kích thước ngăn tủ bếp khu đựng đồ khô

So với việc chọn kích thước ngăn tủ bếp khu vực nấu ăn, việc lựa chọn kích thước ngăn tủ bếp để đựng đồ khô có sự linh hoạt hơn, phù thuộc vào số lượng thực phẩm gia đình sử dụng. Khi đó, kích thước ngăn tủ có thể được điều chỉnh để đáp ứng nhu cầu lưu trữ.

Thông thường, ngăn tủ bếp đựng đồ khô thường có chiều rộng khoảng 60cm đến 60cm và chiều cao từ 120cm đến 220cm, tùy thuộc vào số lượng ngăn cần thiết để lưu trữ thực phẩm. Điều này giúp tối ưu hóa không gian và tiện ích cho gia đình.

kích thước chuẩn các ngăn tủ bếp
Kích thước chuẩn khu đựng đồ khô

Kích thước các ngăn tủ bếp khu đựng bát đĩa

Kích thước các ngăn tủ bếp khu đựng bát đĩa có vai trò quan trọng trong việc tối ưu hóa không gian và tiện lợi trong việc lưu trữ chén đĩa. Thông thường, ngăn tủ bếp để đựng bát đĩa có chiều rộng khoảng 70cm đến 90cm, tùy thuộc vào kích thước và số lượng chén đĩa mà gia đình sử dụng.

Điều này giúp tạo ra sự sắp xếp ngăn nắp và tiện ích trong việc lưu trữ và truy cập vào bát đĩa một cách dễ dàng và tiện lợi. Ngoài ra, việc có các ngăn tủ có chiều sâu phù hợp cũng giúp bảo vệ và tổ chức chén đĩa một cách hiệu quả, tránh việc chúng va đập và gây hư hỏng.

kích thước các ngăn tủ bếp chuẩn
Kích thước các ngăn tủ bếp khu đựng bát đĩa

>> Xem thêm: Tìm hiểu 5 công năng tủ bếp cơ bản cần phải có

Kích thước ngăn tủ bếp khu đựng máy móc nhà bếp

Để đảm bảo sự bền vững cho đồ dùng và tạo ra không gian gọn gàng, việc sắp xếp ngăn tủ riêng cho chảo, xoong nồi, đồ gia dụng, máy móc và thiết bị điện tử là cần thiết. Thông thường, các vật phẩm nhỏ kích thước và nhẹ nên được đặt trong các ngăn tủ trên, trong khi các vật phẩm lớn, cồng kềnh và nặng nên được đặt trong các ngăn tủ dưới.

Vì vậy, kích thước của các ngăn tủ bếp trên nên nhỏ hơn so với các ngăn tủ bếp dưới. Bạn có thể dựa vào nhu cầu sử dụng và không gian tổng thể của phòng bếp để lựa chọn kích thước phù hợp cho các ngăn tủ bếp.

kích thước các ngăn tủ bếp tiêu chuẩn
Kích thước chuẩn khu đựng máy móc nhà bếp

Kích thước ngăn kéo tủ bếp

Kích thước ngăn kéo tủ bếp cần được cân nhắc để đảm bảo sự tiện lợi và tối ưu hóa không gian lưu trữ trong bếp. Thông thường, chiều rộng của ngăn kéo tủ bếp có thể varie từ khoảng 40cm đến 60cm, tùy thuộc vào mục đích sử dụng và khối lượng vật phẩm cần chứa bên trong.

Đối với ngăn kéo bếp chứa đồ như đĩa, chén, và các dụng cụ nhỏ khác, kích thước rộng khoảng 60cm đến 80cm thường là lý tưởng. Điều này giúp tạo ra không gian lưu trữ tiện lợi và giúp tiếp cận dễ dàng đến các vật dụng hàng ngày.

Ngăn kéo lớn hơn, có chiều rộng từ 60cm đến 80cm, thích hợp để lưu trữ các vật phẩm lớn hơn như nồi, chảo, và bát đĩa có kích thước lớn. Kích thước lớn này cung cấp không gian đủ cho việc xếp chồng các vật dụng và giữ chúng gọn gàng.

kích thước các ngăn tủ bếp
Kích thước ngăn kéo tủ bếp

>> Bài viết liên quan: Kích thước tủ bếp chữ I chuẩn người Việt cho không gian bếp

Kích thước ngăn rửa thực phẩm

Ngăn rửa bát thường được trang bị hai chậu rửa bằng nhôm hoặc đá, đây là nơi quan trọng để rửa thực phẩm và đòi hỏi việc vệ sinh thường xuyên để đảm bảo an toàn cho sức khỏe của gia đình. Trong tủ bếp dưới ngăn rửa thực phẩm, thường có thùng rác tủ bếp.

Để đảm bảo vệ sinh và tăng tính thẩm mỹ cũng như tiện lợi trong quá trình sử dụng, nên lựa chọn những thùng rác thông minh có nắp đậy. Điều này không chỉ giúp giữ gìn vệ sinh mà còn mang lại một không gian bếp thẩm mỹ hơn.

tính kích thước các ngăn tủ bếp chuẩn
Kích thước ngăn rửa thực phẩm chuẩn

Kích thước ngăn chứa thực phẩm

Ngăn tủ chứa thực phẩm cần được chia thành hai phần riêng biệt để đảm bảo lưu trữ đồ khô và tủ lạnh. Phụ thuộc vào nhu cầu và kích thước căn bếp, tủ lạnh có thể được lựa chọn với kích thước phù hợp. Trong khi đó, tủ đồ khô có thể được thiết kế dạng cánh mở hoặc trượt tùy theo sở thích của gia chủ.

Đối với ngăn tủ chứa thực phẩm, việc vệ sinh và lau chùi định kỳ là cần thiết để ngăn chặn sự phát triển của vi khuẩn và côn trùng có thể gây hại đến chất lượng thực phẩm và sức khỏe của gia đình.

>> Xem thêm: Cập nhật báo giá tủ bếp gỗ tự nhiên, gỗ công nghiệp trọn gói

Kích thước ngăn nấu, chế biến thức ăn

Khu vực nấu ăn thường có ngăn tủ dưới dành cho bình gas, bếp điện hoặc bếp từ, trong khi phần trên thường là máy hút mùi để loại bỏ mùi thức ăn và cải thiện chất lượng không khí trong nhà. Ngoài ra, lò nướng và lò vi sóng có thể được bố trí ở một bên hoặc trong một ngăn tủ bếp dưới khác. Thiết kế này tạo điều kiện thuận lợi cho việc nấu nướng.

kích thước các ngăn tủ bếp phù hợp
Kích thước ngăn nấu, chế biến thức ăn chuẩn

Kích thước ngăn soạn, chuẩn bị chế biến

Khu vực chuẩn bị và soạn thức ăn là nơi mà người nội trợ sắp xếp các dụng cụ, thực phẩm và gia vị để chuẩn bị các món ăn. Trong khu vực này, nên có chỗ để dao, thớt, gia vị, máy lọc nước, máy xay,…

Để tránh tình trạng bị nước bắn làm hỏng, kệ đựng gia vị nên được đặt ở tầng cao nhất. Tầng thứ hai có thể dành cho các thiết bị hỗ trợ, trong khi dưới cùng nên để dao kéo và các dụng cụ cắt thái.

Kích thước tủ bếp chuẩn phù hợp cho các gia đình

Kích thước tủ bếp dưới

Kích thước tủ bếp dưới cần được xác định một cách cẩn thận để đảm bảo sự tiện lợi và tối ưu hóa không gian trong căn bếp. Thông thường, chiều rộng của tủ bếp dưới có thể varie từ khoảng 30cm đến 90cm, tùy thuộc vào mục đích sử dụng và khối lượng vật phẩm cần chứa bên trong.

Tủ bếp dưới thường được sử dụng để lưu trữ các vật phẩm lớn như nồi, chảo, bát đĩa, và các dụng cụ nấu nướng. Vì vậy, kích thước rộng của tủ bếp dưới cần đủ để chứa và sắp xếp những vật phẩm này một cách thuận tiện.

>> Bài viết cùng chủ đề: Tư vấn kích thước tủ bếp treo tường chuẩn cho người Việt

Kích thước tủ bếp trên

Tủ bếp trên, hay còn được gọi là tủ bếp treo tường, là một lựa chọn phổ biến mà nhiều gia đình ưa thích để tiết kiệm diện tích và mở rộng không gian trong phòng bếp. Kích thước của tủ bếp trên có thể thay đổi linh hoạt và được đo đạc dựa trên kích thước tổng thể của căn bếp.

Chiều dài của tủ bếp trên có thể tùy chỉnh để phù hợp với không gian tổng thể. Chiều cao của tủ bếp trên thường tương thích với chiều cao trung bình của người Việt Nam, từ 70cm đến 90cm. Tuy nhiên, nếu gia đình bạn có nhiều vật phẩm cần lưu trữ, có thể lựa chọn tủ kịch trần để tận dụng tối đa không gian trên tường.

Chiều sâu của tủ bếp trên thường nhỏ hơn so với tủ bếp dưới, với mức từ 30cm đến 40cm, đây được coi là mức độ hợp lý nhất. Điều này giúp tạo ra sự cân đối và tiện lợi khi truy cập và sử dụng các vật phẩm trong tủ bếp trên.

tính kích thước các ngăn tủ bếp đúng
Kích thước tủ bếp trên

Kích thước tủ bếp rời

Kích thước tủ bếp rời có thể thay đổi tùy thuộc vào thiết kế và sở thích cá nhân. Tuy nhiên, để đảm bảo tính thẩm mỹ và tiện dụng, có một số kích thước chung mà bạn có thể tham khảo.

● Chiều cao: Thông thường, tủ bếp rời có chiều cao từ 80cm đến 90cm. Tuy nhiên, chiều cao có thể điều chỉnh để phù hợp với người sử dụng và không gian tổng thể của căn bếp.

● Chiều rộng: Kích thước tủ bếp rời về chiều rộng cũng có sự linh hoạt. Tùy thuộc vào mục đích sử dụng và không gian có sẵn, bạn có thể chọn kích thước từ 30cm đến 120cm hoặc hơn nữa.

● Chiều sâu: Thông thường, tủ bếp rời có chiều sâu từ 30cm đến 60cm. Chiều sâu này đảm bảo không gian đủ để lưu trữ các vật phẩm và tiện ích trong quá trình sử dụng.

tiêu chuẩn kích thước các ngăn tủ bếp
Kích thước tủ bếp rời

>> Xem thêm: Lựa chọn màu tủ bếp hợp phong thủy thu hút tài lộc

Một số lưu ý khi thiết kế các ngăn tủ bếp

Khi thiết kế kích thước các ngăn tủ bếp, có một số lưu ý quan trọng để đảm bảo tính tiện dụng và tối ưu hóa không gian lưu trữ. Dưới đây là một số gợi ý:

● Xác định nhu cầu sử dụng: Đầu tiên, xác định rõ nhu cầu sử dụng và loại vật phẩm cần lưu trữ trong từng ngăn tủ. Điều này sẽ giúp bạn quyết định kích thước, cấu trúc và chức năng của từng ngăn.

kích thước tiêu chuẩn các ngăn tủ bếp
Xác định nhu cầu sử dụng

● Tối ưu hóa không gian: Tận dụng không gian trong tủ bếp bằng cách sử dụng các bộ phận tủ thông minh như ngăn kéo, ngăn đứng, khay xoay hoặc giá đỡ điều chỉnh. Điều này giúp bạn tổ chức và sắp xếp vật phẩm một cách hiệu quả, tận dụng mọi góc và không gian trống.

kích thước ngăn kéo tủ bếp chuẩn
Tối ưu hóa không gian

● Đo lường và lựa chọn kích thước phù hợp: Trước khi lắp đặt, hãy đo kích thước chính xác của không gian tủ bếp. Lựa chọn kích thước ngăn tủ sao cho phù hợp với không gian có sẵn và nhu cầu sử dụng. Điều này giúp tránh tình trạng quá chật hoặc lãng phí không gian.

kích thước các ngăn tủ bếp chuẩn đẹp
Đo lường và lựa chọn kích thước phù hợp

● Thiết kế sắp xếp hợp lý: Xác định các vật phẩm cần tiếp cận thường xuyên và đặt chúng ở những vị trí dễ dàng đến được. Đồng thời, lưu ý tới việc phân chia các ngăn tủ theo nhóm vật phẩm tương tự như chén đĩa, nồi, chảo, gia vị, để tạo sự thuận tiện và tìm kiếm dễ dàng.

kích thước ngăn kéo tủ bếp phổ biến
Thiết kế sắp xếp hợp lý

● Vệ sinh và bảo quản: Đảm bảo rằng các ngăn tủ có thể dễ dàng vệ sinh và bảo quản. Lựa chọn vật liệu dễ lau chùi, chống thấm nước và chịu được môi trường ẩm ướt. Đồng thời, cân nhắc việc sử dụng khay chống trượt để ngăn các vật phẩm di chuyển khi mở và đóng tủ.

kích thước ngăn kéo tủ bếp
Vệ sinh và bảo quản

● Tính thẩm mỹ: Không chỉ quan tâm đến tính tiện dụng, cân nhắc cả yếu tố thẩm mỹ trong thiết kế các ngăn tủ. Lựa chọn màu sắc, chất liệu và phối hợp hài hòa với kiểu dáng tổng thể của căn bếp, tạo ra không gian bếp đẹp mắt và hài hòa.

chuẩn kích thước các ngăn tủ bếp
Tính thẩm mỹ

>> Xem thêm: Kích thước tủ bếp chữ U chuẩn

Canihome – Đơn vị cung cấp các mẫu tủ bếp đẹp, chất lượng

Canihome là một đơn vị cung cấp các mẫu tủ bếp đẹp và chất lượng. Các sản phẩm của Canihome được thiết kế để mang lại không gian bếp sang trọng và tiện nghi cho khách hàng.

⇒ Một trong những ưu điểm của Canihome là mang đến cho khách hàng một loạt các mẫu tủ bếp đẹp và phong cách. Khách hàng có thể lựa chọn từ nhiều kiểu dáng và màu sắc khác nhau phù hợp với phong cách và không gian của căn nhà. Các sản phẩm được thiết kế tinh tế và sử dụng các vật liệu chất lượng cao để đảm bảo sự bền bỉ và đáng tin cậy.

⇒ Các tủ bếp của Canihome được sản xuất từ các nguyên liệu chất lượng cao và qua quy trình sản xuất nghiêm ngặt. Điều này đảm bảo rằng sản phẩm cuối cùng đáp ứng được các tiêu chuẩn cao về độ bền, tính thẩm mỹ và sự tiện nghi.

⇒ Canihome cung cấp cho khách hàng những giải pháp lưu trữ thông minh và tận dụng tối đa không gian bếp. Đặc biệt, khi thi công Canihome sẽ đảm bảo kích thước các ngăn tủ bếp theo tiêu chuẩn gia đình Việt.

⇒ Ngoài ra, Canihome còn có đội ngũ nhân viên tư vấn chuyên nghiệp và tận tâm. Họ sẽ lắng nghe và hiểu nhu cầu của khách hàng, đồng thời đưa ra các giải pháp tốt nhất cho không gian bếp của họ. Khách hàng có thể tin tưởng vào sự chuyên nghiệp và kiến thức của đội ngũ Canihome để chọn lựa tủ bếp phù hợp nhất.

Nội thất Canihome là một đơn vị cung cấp các mẫu tủ bếp đẹp và chất lượng, đáp ứng nhu cầu của khách hàng về không gian bếp sang trọng, tiện nghi và thẩm mỹ. Nếu bạn cần tư vấn, giải đáp các thắc mắc liên quan đến kích thước các ngăn tủ bếp, liên hệ ngay đội ngũ kỹ thuật CaniHome để được hỗ trợ nhanh nhất.

Để lại một bình luận

Email của bạn sẽ không được hiển thị công khai. Các trường bắt buộc được đánh dấu *

Zalo
Messenger
Fanpage
Lên trên