Việc sử dụng bản vẽ tủ bếp khi thiết kế là quan trọng vì nó mang lại nhiều lợi ích cho cả người thiết kế và người sử dụng. Cùng tham khảo những thông tin chia sẻ dưới đây để nắm bắt được cách đọc bản vẽ chính xác.

Tại sao cần bản vẽ khi thiết kế tủ bếp?
Trước khi tìm hiểu tầm quan trọng của bản vẽ thiết kế tủ bếp thì bạn cần hiểu được bản vẽ tủ bếp là gì.
Bản vẽ tủ bếp là gì?
Bản vẽ thiết kế tủ bếp là một bức tranh mô tả cụ thể về cấu trúc và hình dáng của tủ bếp. Dưới bàn tay tài năng của kiến trúc sư, tủ bếp được mô tả một cách tỉ mỉ, từ cánh cửa đến quầy đỡ, từ kích thước đến vị trí của từng ngăn và ngăn kéo.
Bản vẽ không chỉ thể hiện về tính thẩm mỹ mà còn chú trọng vào tính tiện ích và sự thoải mái khi sử dụng. Đối với mỗi khoảng trống, kiến trúc sư đã tính toán để tối ưu hóa không gian lưu trữ và đảm bảo sự tiện lợi.
Tại sao cần bản vẽ tủ bếp khi thiết kế tủ bếp?
Bản vẽ thiết kế tủ bếp đóng vai trò quan trọng trong quá trình thiết kế và xây dựng không gian bếp. Dưới đây là những lý do cần cần bản vẽ tủ bếp khi thiết kế tủ bếp:

– Bản vẽ giúp xác định rõ kích thước của tủ bếp, đảm bảo chúng phù hợp với không gian có sẵn trong căn phòng.
– Cung cấp thông tin chi tiết về cấu trúc của tủ bếp, bao gồm vị trí của các kệ, ngăn, cánh cửa,… Cho phép người sử dụng hiểu rõ hơn về cách tủ bếp sẽ được bày trí và sử dụng như thế nào.
– Bản vẽ là một công cụ hiệu quả để giao tiếp ý tưởng thiết kế giữa kỹ và khách hàng tạo ra sự đồng thuận và đưa ra kết quả cuối cùng về nội dung của bản vẽ tủ bếp.
– Bản vẽ hướng dẫn chi tiết giúp người thợ xây dựng hiểu rõ cách thức thực hiện công việc một cách chính xác nhằm giảm nguy cơ lỗi trong quá trình xây dựng.
– Bản vẽ giúp ước lượng chi phí chính xác hơn cho việc mua vật liệu và sử dụng lao động.
– Nếu có sự thay đổi hoặc điều chỉnh, việc sửa đổi trên bản vẽ sẽ đơn giản hơn so với việc thay đổi sau khi tủ bếp đã được xây dựng.

– Bản vẽ cung cấp hướng dẫn cho việc bảo dưỡng và sửa chữa tủ bếp theo thời gian.
Tóm lại, bản vẽ tủ bếp không chỉ là một công cụ hữu ích trong quá trình thiết kế mà còn đóng vai trò quan trọng trong việc truyền đạt ý tưởng, tối ưu hóa sử dụng không gian, đảm bảo tính chính xác và hiệu quả trong quá trình xây dựng cũng như sử dụng.

Tổng hợp những mẫu bản vẽ tủ bếp đẹp được yêu thích nhất
Trong thế giới thiết kế nội thất hiện đại, tủ bếp không chỉ đóng vai trò chứa đựng đồ dùng mà còn là điểm nhấn quan trọng cho không gian nhà bếp. Dưới đây là những mẫu bản vẽ tủ bếp độc đáo và được ưa chuộng:
Mẫu bản vẽ tủ bếp chữ I
Tủ bếp theo hình chữ I không chỉ tối giản mà còn tạo cảm giác thoải mái và rộng lớn. Bản vẽ này thường kết hợp giữa các đơn vị tủ và không gian để tạo nên một không gian mở, hiện đại.

Mẫu bản vẽ tủ bếp chữ L
Mô hình chữ L thường được ưa chuộng trong những không gian nhà bếp hạn chế diện tích. Bản vẽ này thường kết hợp khu vực phòng khách và khu vực bếp một cách sáng tạo và tận dụng mọi góc nhỏ.

>> Xem thêm: Hướng dẫn cách trang trí tủ bếp đẹp
Mẫu bản vẽ tủ bếp chữ U
Thiết kế theo hình chữ U tối ưu hóa không gian lưu trữ và tạo ra một không gian nhà bếp chất lượng cao với các đơn vị tủ xung quanh tạo nên sự tiện lợi và thẩm mỹ.

Mẫu bản vẽ tủ bếp có bàn đảo
Tủ bếp có bàn đảo là một lựa chọn xu hướng, tối ưu hóa không gian và tăng cường tính tiện ích. Bản vẽ này thường bao gồm một bàn làm việc hoặc quầy bar tích hợp nhằm tạo điểm nhấn độc đáo.

>> Xem thêm: 5+ cách phối màu tủ bếp hiện đại, nhìn là nghiện
Mẫu bản vẽ tủ bếp song song
Thiết kế tủ bếp song song giúp tối ưu hóa không gian bếp và tạo nên một không gian mở, linh hoạt. Các đơn vị tủ được sắp xếp đối xứng, tạo cảm giác cân đối và hài hòa.

Mẫu bản vẽ tủ bếp có quầy bar
Với xu hướng ưa chuộng không gian sinh hoạt và giao tiếp trong nhà bếp, tủ bếp có quầy bar là sự kết hợp hoàn hảo giữa chức năng và thẩm mỹ. Bản vẽ này thường tạo nên một khu vực ấn tượng và là nơi tuyệt vời để tận hưởng bữa ăn.
Những mẫu bản vẽ tủ bếp trên không chỉ thể hiện sự sáng tạo trong thiết kế nội thất mà còn đáp ứng nhu cầu sử dụng hàng ngày của gia đình, tạo nên không gian bếp vừa đẹp mắt vừa tiện nghi.

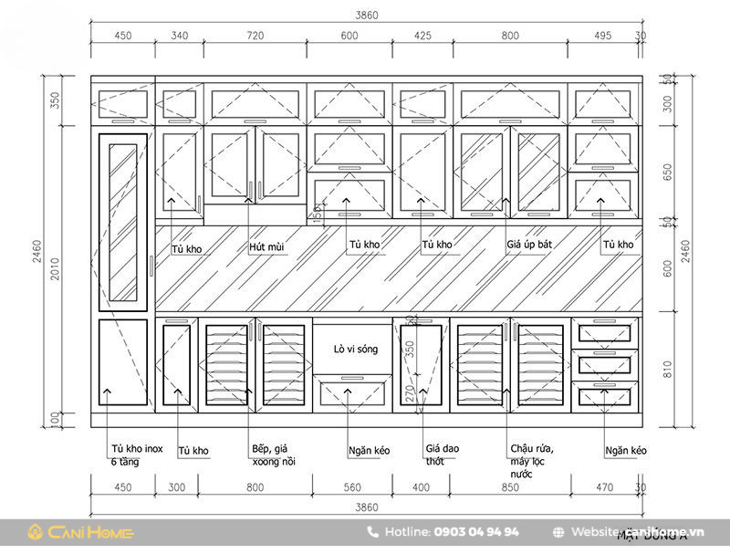
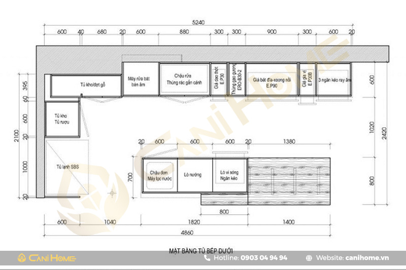
Hướng dẫn cách đọc bản vẽ tủ bếp đơn giản
Để đọc và hiểu bản vẽ tủ bếp đơn giản một cách chi tiết, bạn cần theo dõi các bước sau:
• Kích thước là yếu tố quan trọng đầu tiên khách hàng cần xác định khi đọc bản vẽ tủ bếp. Hãy chú ý đến các chiều dài, chiều rộng và chiều cao của tủ. Số liệu này sẽ giúp khách hàng dễ dàng xác định xem tủ có phù hợp với không gian của mình hay không.
• Tiếp theo cần quan sát vị trí lắp đặt, bản vẽ sẽ chỉ rõ vị trí cụ thể mà tủ bếp sẽ được lắp đặt trong không gian nhà bếp. Kiểm tra xem tủ được đặt ở phía trên hay phía dưới và định vị hướng tủ bếp so với các yếu tố khác như cửa sổ, cửa ra vào hay các ống nước.

• Sau đó, khách hàng quan sát cách bố trí các ngăn tủ được sắp xếp bên trong bếp. Chú ý đến số lượng ngăn, kích thước của từng ngăn và mục đích sử dụng của chúng. Các kích thước này sẽ quyết định khả năng chứa đựng và sắp xếp các vật dụng bếp.
• Cuối cùng là xác định vị trí của các yếu tố cơ bản như bồn rửa, bếp nấu, tủ lạnh và các thiết bị khác. Điều này giúp khách hàng hiểu được cách tủ bếp tích hợp vào toàn bộ không gian nhà bếp và liệu có thuận tiện trong việc sử dụng hay không.

• Ngoài các yếu tố chính, bản vẽ tủ bếp còn có các bố cục phụ trợ như tủ góc, kệ để đựng dao, kệ để dụng cụ nấu ăn và các chi tiết khác. Đọc các ghi chú hoặc mô tả trong bản vẽ để hiểu rõ về mục đích sử dụng và cách tích hợp chúng vào tủ.
Lưu ý quan trọng nhất khi đọc bản vẽ tủ bếp là cần chú ý sự logic và liên kết giữa các yếu tố trên bản vẽ. Hiểu rõ từng chi tiết giúp khách hàng có cái nhìn toàn diện về thiết kế tủ bếp để phục vụ nhu cầu sử dụng trong không gian nhà bếp.

>> Xem thêm: Top 5 loại đá ốp bếp phổ biến
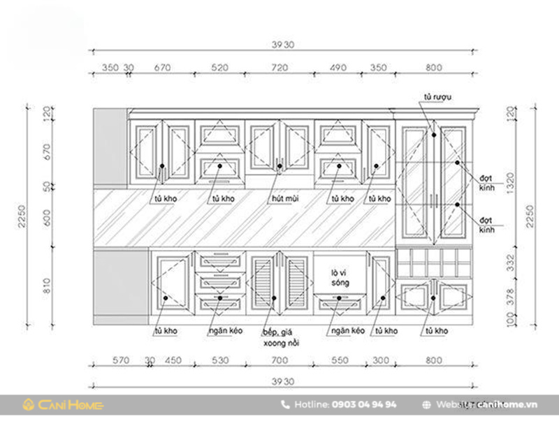
Một số mẫu tủ bếp đẹp được thi công từ bản vẽ tủ bếp mà Canihome đã thực hiện
Hiện nay trên thị trường nội thất, tủ bếp rất đa dạng về mẫu mã và kiểu dáng. Dưới đây là một số mẫu tủ bếp đẹp được thi công từ bản vẽ tủ bếp mà Canihome đã thực hiện:
Tủ bếp hiện đại tiện nghi
Trong thiết kế nội thất hiện đại, tủ bếp không chỉ có chức năng chứa đựng vật dụng mà còn là tác phẩm nghệ thuật. Một mẫu tủ bếp đẹp có thể kết hợp giữa tính thực tế và vẻ đẹp tinh tế. Một ví dụ điển hình là tủ bếp với bề mặt làm từ chất liệu thép không gỉ kết hợp với đèn LED tinh tế. Bảng màu đa dạng và kích thước linh hoạt giúp tạo nên một không gian bếp sang trọng và chức năng.

Tủ bếp nhôm hợp kim
Tủ bếp nhôm hợp kim là phiên bản hoàn hảo dành cho những khách hàng yêu thích sản phẩm tinh tế, sang trọng, đầy đủ công năng sử dụng, bền đẹp theo thời gian. Loại tủ bếp nhôm (có thể kết hợp cánh kính hoặc cánh Acrylic) có khả năng chống ẩm mốc, chống cong vênh, chống mối mọt, dễ dàng lau chùi, vệ sinh… giữ tủ bếp luôn sạch như mới.

Tủ bếp mở không gian
Nếu bạn muốn không gian nhà bếp trở nên rộng lớn hơn, tủ bếp mở là lựa chọn độc đáo và sáng tạo. Mẫu tủ bếp này được kết hợp giữa kệ mở để trưng bày đồ và kệ đóng để giữ gọn vật dụng. Điều này không chỉ làm tăng tính thẩm mỹ mà còn tạo cảm giác không gian mở thoáng.

Tủ bếp vintage cổ điển
Tủ bếp vintage sẽ khiến bạn hài lòng về sự cổ điển và độ đẳng cấp. Gỗ tự nhiên với đường nét cổ điển, tay nắm và phụ kiện bằng đồng cổ cùng màu sắc ấm áp sẽ làm nổi bật không gian nhà bếp, đồng thời tạo nên một không gian ấm cúng và sang trọng.

>> Xem thêm: 99+ mẫu vách ngăn phòng khách và bếp đẹp được ưa chuộng
Tủ bếp tối giản hiện đại
Thiết kế tủ bếp tối giản là xu hướng ngày nay. Mẫu tủ bếp này thường sử dụng màu sắc nhẹ nhàng như trắng, xám hoặc đen, kết hợp với đường nét đơn giản và tinh tế. Các khối hình học và vật liệu như kính cường lực hay nhôm tạo nên một diện mạo hiện đại và sạch sẽ cho không gian nhà bếp.

Nội thất Canihome – Địa chỉ tư vấn, thiết kế và thi công tủ bếp trọn gói
Tủ bếp không chỉ là nơi chứa đựng vật dụng mà còn là điểm nhấn tinh tế trong không gian sống của bạn. Tuy nhiên việc lựa chọn bản vẽ tủ bếp vừa đảm bảo sự tiện nghi, thẩm mỹ vừa phù hợp với khả năng tài chính là vấn đề nhiều khách hàng đặc biệt quan tâm.
Nội thất Canihome là đơn vị nội thất uy tín tại TP HCM, chuyên tư vấn, thiết kế và thi công tủ bếp trọn gói. Với đội ngũ kỹ thuật giàu kinh nghiêm và đội ngũ công nhân lành nghề, Canihome cam kết mang đến cho khách hàng một không gian bếp hoàn hảo nhất.
Đồng thời, Nội thất Canihome thiết kế và thi công tủ bếp trọn gói nên mang lại sản phẩm đạt chất lượng cao với giá thành hợp lý. Không chỉ vậy, quy trình thi công luôn đảm bảo đúng tiến độ làm hài lòng khách khách hàng.
Một số mẫu tủ bếp đã được Canihome thi công thành công sau khi triển khai theo bản vẽ tủ bếp như sau:







Với những thông tin chia sẻ về bản vẽ tủ bếp ở trên, hy vọng bạn sẽ hiểu rõ hơn về tầm quan trọng và cách đọc bản vẽ để lựa chọn tủ bếp đẹp nhất cho không gian bếp của mình. Để nhận được báo giá chi tiết và bản vẽ tủ bếp, bạn hãy liên hệ đến Canihome để được tư vấn cụ thể nhé!
Thông Tin Liên Hệ:
- Showroom 1: 240 Vành Đai Trong, Bình Trị Đông B, Bình Tân, TP. HCM
- Showroom 2: 530 Liên Phường, P. Phú Hữu, TP. Thủ Đức, TP. HCM
- Hotline: 0931 922 977 - 0903 04 94 94
- Xưởng: Liên Ấp 2-6, Vĩnh Lộc A, Bình Chánh, TP. HCM
- Email: canihome.vn@gmail.com

Tôi là Nguyễn Trung Hiếu, hiện đang đảm nhiệm vị trí CEO tại Nội thất Canihome. Tôi mong muốn có thể mang tới cho khách hàng những sản phẩm nội thất đa dạng, chất lượng, đảm bảo công năng sử dụng, tính thẩm mỹ cao và giá thành hợp lý nhất.

Bài viết liên quan
Đóng tủ bếp đẹp, bền, uy tín, thi công trọn gói
Cập nhật báo giá tủ bếp gỗ tự nhiên, gỗ công nghiệp trọn gói
30+ Mẫu nhà bếp ở nông thôn đẹp, hiện đại và tiện nghi
Tủ bếp dạng module là gì? Ưu và nhược điểm cần nắm
Cách xác định chiều cao bếp tiêu chuẩn hợp phong thủy
Giá tủ bếp nhựa Hàn Quốc cập nhật mới nhất 2024
40+ mẫu tủ bếp có bồn rửa chén chính hãng, giá tốt 2024
Báo giá tủ bếp nhựa – [Cập nhật] mới nhất 2024
99+ mẫu vách ngăn phòng khách và bếp đẹp được ưa chuộng